top of page
DISEÑO ARQUITECTÓNICO
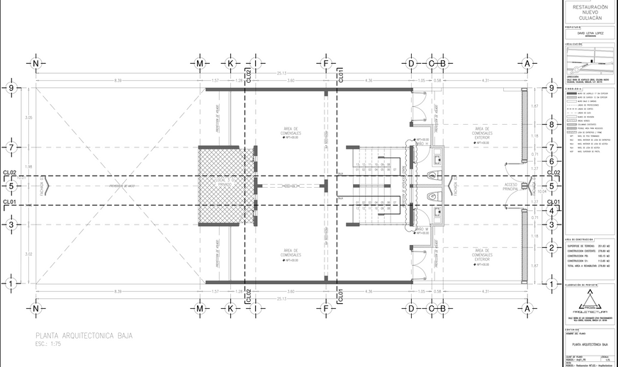
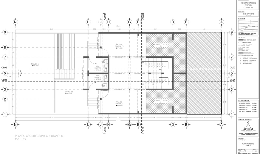
El Diseño Arquitectónico corresponde a la parte del proyecto donde se representará la distribución final de los espacios solicitados y los cuales conformarán el "Programa Arquitectónico". Junto con esta información se entregan tambien imagenes fotorrealistas (renders) para tener una percepción más clara que como se vería el proyecto o diseño ya construido.
Dentro de los entregables se incluyen (ejemplo de proyecto de dos niveles):
-
Planta Arquitectónica Baja
-
Planta Arquitectónica Alta
-
Planta Arquitectónica de Azotea
-
Corte Longitudinal 01
-
Corte Longitudinal 02
-
Cortes Transversales 01 y 02
-
Fachadas (de acuerdo al proyecto)
-
Render (s) de Fachadas
bottom of page









